Construcciones prefabricadas modulares

Modelo Agarimo 74 mts

modelo agarimo

Más información técnica:

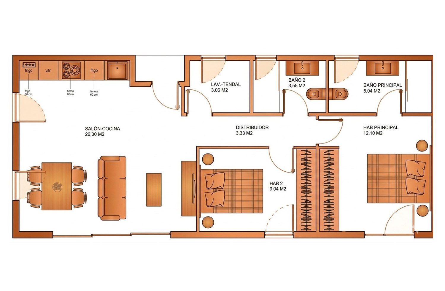
En una única planta, sin barreras arquitectónicas, especialmente adaptado para su implantación en parcelas alargadas con poco frente de fachada y/o difícil acceso.

Todas las estancias de la vivienda son exteriores lo que permiten integrar la casa de manera natural en la parcela.

La vivienda cuenta con un impresionante salón comedor con cocina abierta, lo que ayuda a crear un espacio diáfano y amplio. La cocina dispone de amplias vistas del exterior de la casa además de un acceso directo a la zona de jardín.

—-
—-
—-

Vivienda

Un modelo equilibrado, amplio y a un precio ajustado. Integra a la perfección la vida interior con las salidas al jardín.

Sus dos habitaciones dobles, dos baños, salón con cocina integrada y un espacio de lavandería convierten esta vivienda en un lujo al alcance de todos.

Características

Datos técnicos

Puedes compartir esta ficha en:
Facebook
Twitter
LinkedIn
WhatsApp
Email

Comienza tu proyecto con nosotros

¿Tienes dudas sobre tu terreno o quieres un presupuesto detallado? Cuéntanos tu idea y nuestro equipo técnico te asesorará personalmente para hacerla realidad.

Logo XMÓDULOS | Casas Modulares
Resumen de privacidad

Esta web utiliza cookies para que podamos ofrecerte la mejor experiencia de usuario posible. La información de las cookies se almacena en tu navegador y realiza funciones tales como reconocerte cuando vuelves a nuestra web o ayudar a nuestro equipo a comprender qué secciones de la web encuentras más interesantes y útiles.