Construcciones prefabricadas modulares

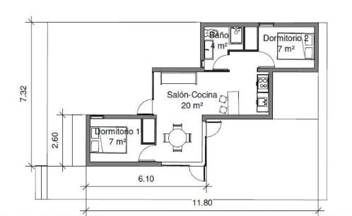
Modelo Praia de Patos

Modelo Praia de Patos

Más información técnica:

Su diseño moderno y minimalista se integra a la perfección con el entorno natural, ofreciendo confort, eficiencia y exclusividad.

Gracias a su aislamiento de alto rendimiento, garantiza una temperatura ideal durante todo el año.

Pensado para el sector turístico premium, este alojamiento sostenible redefine el concepto de lujo contemporáneo.

—-
—-
—-

Vivienda

Vive una experiencia única en este elegante apartamento construido a partir de tres contenedores de 20 pies.

Características

Datos técnicos

Puedes compartir esta ficha en:
Facebook
Twitter
LinkedIn
WhatsApp
Email

Comienza tu proyecto con nosotros

¿Tienes dudas sobre tu terreno o quieres un presupuesto detallado? Cuéntanos tu idea y nuestro equipo técnico te asesorará personalmente para hacerla realidad.

Logo XMÓDULOS | Casas Modulares
Resumen de privacidad

Esta web utiliza cookies para que podamos ofrecerte la mejor experiencia de usuario posible. La información de las cookies se almacena en tu navegador y realiza funciones tales como reconocerte cuando vuelves a nuestra web o ayudar a nuestro equipo a comprender qué secciones de la web encuentras más interesantes y útiles.